Specifikationer:
- Mærke: FlexiLine
- Model: ISD01 industriport
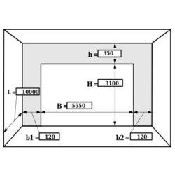
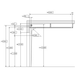
- Hulmål: 5550 x 3100 mm (BxH)
- Nødvendig overhøjde: 350 mm
- Nødvendig sideplads: 120 mm (300 mm i motorside)
- Farve udvendig: Sort RAL9005
- Farve indvendig: Sort RAL9005 (special produktion)
- Paneler: 40 mm højisolerede med brudt kuldebro
- Design: M-line, Woodgrain (åre struktur)
- Fjedre: Torsionsfjedre med 25.000 åbninger
- Sikkerhed: Wirebruds sikring og fjedrebruds sikring
- Elhejs: BASE50 elhejs (230V) med væg styring
- Tilbehør: ProSmart app-styring (WiFi baseret)
- Montagevideo: Ja, uden elhejs
- Garanti: 2 år på elhejs, 10 år på paneler og køreskinner
